> WORKS

︎inOUTinBETWEEN

  fall 2015


What do you mean by ‘liminal space’?


The discontinuity of existing forms and entrances made for a complicated, convoluted, confused interior flow within the existing theatre school lobby.

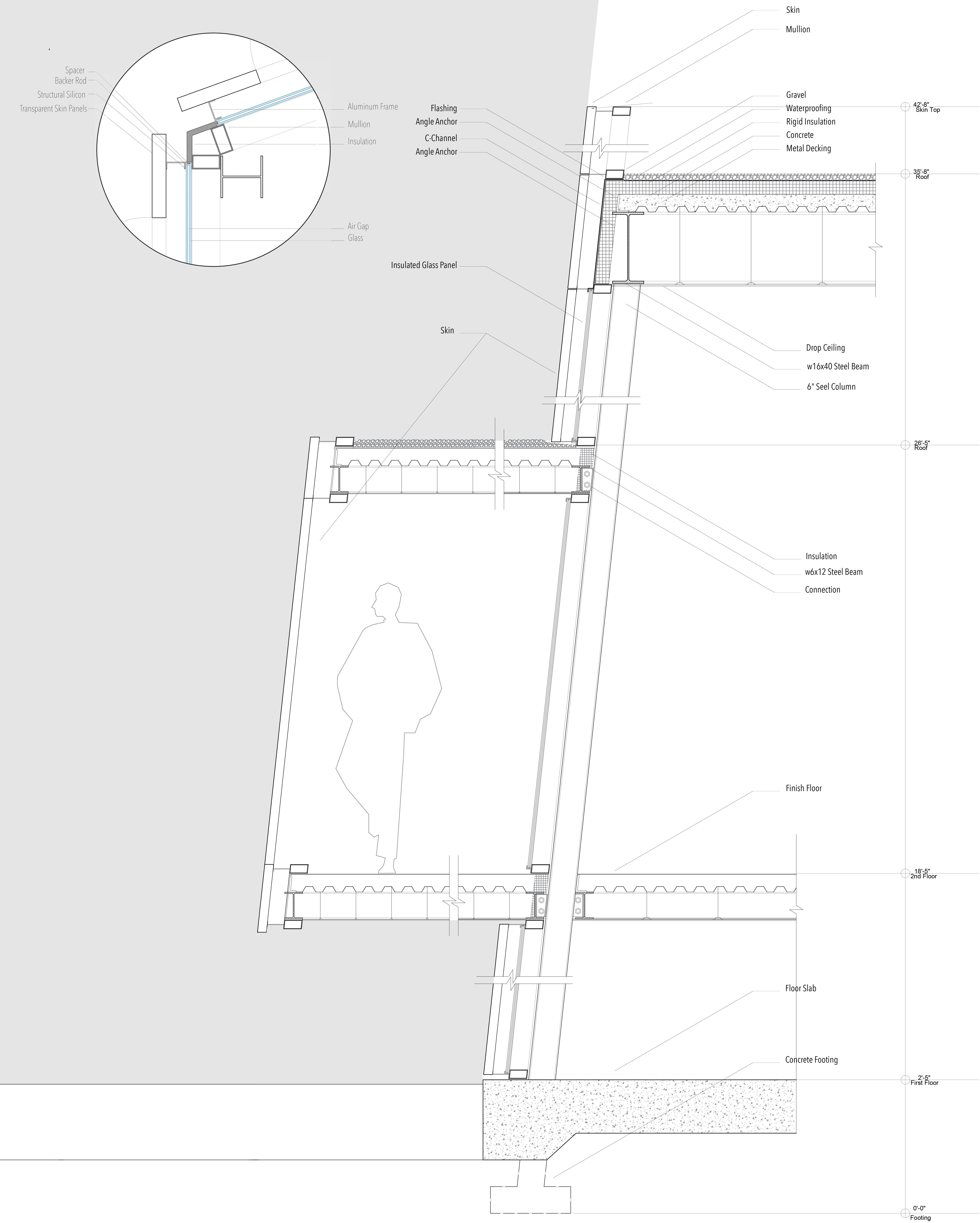
A minimal adaptation for fundamental overhaul of movement within; a new skin to blend the barriers between inside and outside, to create distinct spaces, and to facilitate links, all from the manipulation of one folded and cut surface that bends, inverts, and overlaps itself. 

The skin wraps around the existing volumes, linking them, but divided by a strip of glass where they meet. 

It indents or pulls away to reveal points of entry, and breaks its continuity to allow for moments of ascension or divisions of space. These movements brings visitors from one space to the next, along an ascent into the main theatre, or up and down from one side of the buildings site to the other.

Interaction with the new skin along the cantilevered paths externalizes as well as internalizes experience.

The skin dynamic fluctuates between inside and outside, both in its physical movements and its visual links.

A grid of mullions expresses the geometries of the folded screen, where scales open in varying conglomerations and degrees; perforations radiate along the skin like a heatmap of internal movement, responding to programs and people and revealing views. 

The lobby is transformed into a space of theatrics itself through varying platforms, overlooks, pathways and perspectives.  A new skin, a subtle hierarchy of space, blurs the defining of the lobby as interior, external to, or somewhere in-between; underneath, alongside, within but without, lost in the liminal folds.

> in collaboration with Cindy Santamaria
Mark