> WORKS

︎LEVITY

SPRING 2016

︎in collaboration with Marina Llado



This advanced research studio based in Fluxus thought challenges the linear process of design by introducing a matrix of interacting parameters. What emerges is an emphasis on process, with a project birthed at the intersection of various independently researched architectural and spatial elements.


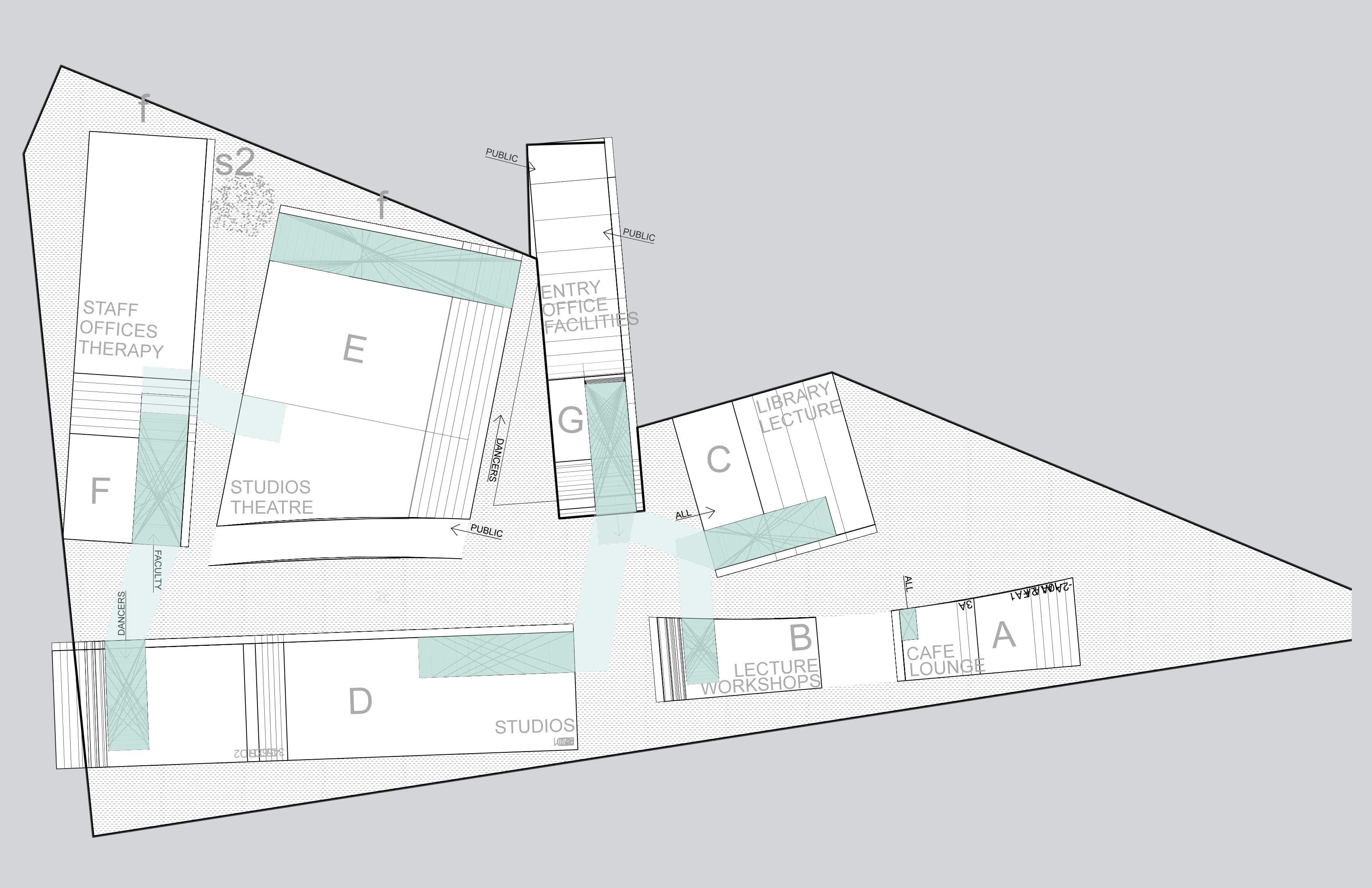
Levity is a dance village, challenging the tower-in-the-park typology of the surrounding context by arguing for a reconsideration of the relative scale and proximity of vertical extrusions.  These stalactites interrupt the ground plane, extending through and above the existing building.  Horizontal movement is softened, and vertical adjacencies rendered reachable, cozy.

A secondary open street condition is created on the roof, between the push and pull of the surrounded structures and the flows through offset openings to each extrusion a bustling degree of interactive private/public space. 


Each extrusion has degrees of specialization of program and user, but all contain studios for dance.

Structural cores emulate the body in motion, vertical circulation stacks that push and interrupt the skin of the buildings, reaching and connecting to the surrounding structures through breaks in the continuity of materiality and movement.


The forms allow for differentiation in space, with a layered materiality that seems to shift with the changing light and shifting perspective from the street, the ground, from one to the next, or from within. 


Transparencies reveal the push and pull of the cores, and the push and pull of the bodies moving within them.

Always motion, always dancing.



A HOUSE OF CHANCE
    IN THE LOWER EAST SITE
        USING NATURAL LIGHTING
            INHABITED BY DANCERS 
[STUDENTS, TEACHERS, FAMILY, COMMUNITY]



VOLUME
ORGANIZATION
SKIN
LIGHT

>OVERLAP
>RECIPROCITY
>VERTICALITY
Mark