> WORKS

︎ACTIVISTestates

  2018-2019

︎BAGCHEE ARCHITECTS X Loisaida Center

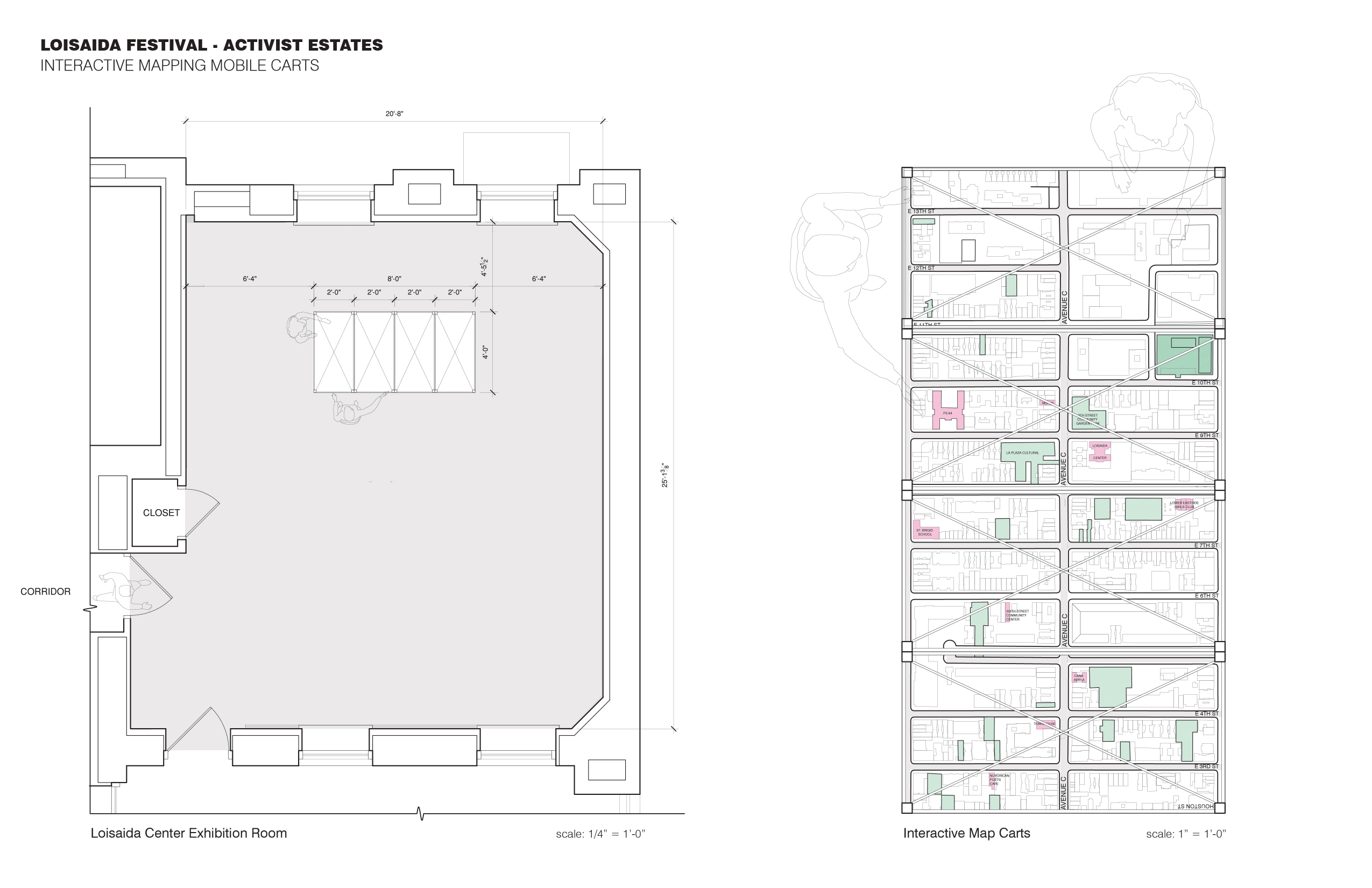
To walk through space and feel as though you are within the book…a 7’ tall interactive map, a timeline of artifacts and documents at the scale of the person, walls covered in groupings of architectural drawings, photographs, and documents, and a room with red carts, winged panels open to flow around and between, creating a moire of metal, paper, and people.

Activist Estates: A Radical History of Property in Loisaida is an exhibit designed and curated by Nandini Bagchee and commissioned/produced by Libertad Guerra and the Loisaida Center. It focuses on the intersectional histories of activism centered on three buildings thateach present a different facet of space-based resistance in the Lower East Side. These are the Peace Pentagon- an office building used by anti-war activists; El Bohio—a large abandoned schoolhouse run as a Puerto Rican community center and ABC NO RIO– a tenement building converted into a collectively run art center. These three buildings embody the overlapping political constituencies that emerged in New York City in the 1970’s when a fiscal crisis and the temporary devaluation of real estate allowed ad hoc citizen undertakings and social advocacy groups to establish control over semi-abandoned properties.

︎

Loisiada Festival and the carts as a mobile architecture used to collect histories, memories, and concerns directly from the community with pins and maps that encourage place-specific histories.


Mark


Mark